Logo223x84

RIEDEL RAUMGESTALTUNG GMBH -

IHR SPEZIALIST FÜR WANDSYSTEME UND SONNENSCHUTZ IM OBJEKTBEREICH



INNENLIEGENDER SICHT-, BLEND- UND SONNENSCHUTZ

sundrape_logo_header

Partner der Firma Sundrape seit über 35 Jahren

FLÄCHENVORHÄNGE

Hufcor 250x250

PLISSEES

Sat1 250x250

LAMELLENVORHÄNGE

Corvus 250x250

PLAFONDANLAGEN

LV A2 250x250

WINTERGARTENVERSCHATTUNGEN

Rennbahn 250x250

ROLLOS

Rollos 250x250

GROSSFLÄCHENVERSCHATTUNGEN

PYRAMIDENVERSCHATTUNGEN

Fiat250x250

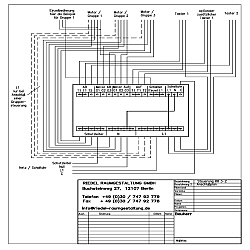
STEUERUNGEN

Steuerung Anschlüsse 250x250

Vereinbaren Sie einen Termin für eine unverbindliche und kostenfreie Beratung unter:

030 747 92779

oder

info@sonnenschutz-berlin.de

oder

hier

VORHÄNGE

Gardinen Büro 250x250

SERVICE

Commerzbank Umbau 250x250